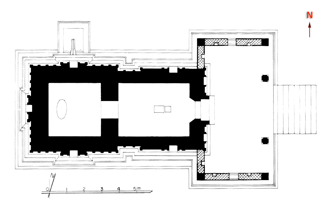
Plant of ground floor