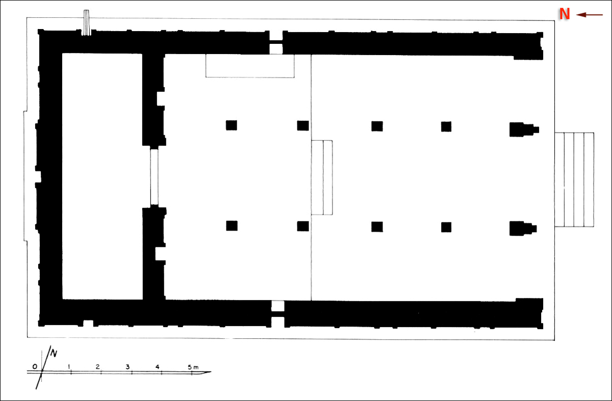
Naṭarāja Maṇḍapa, plan of ground floor.