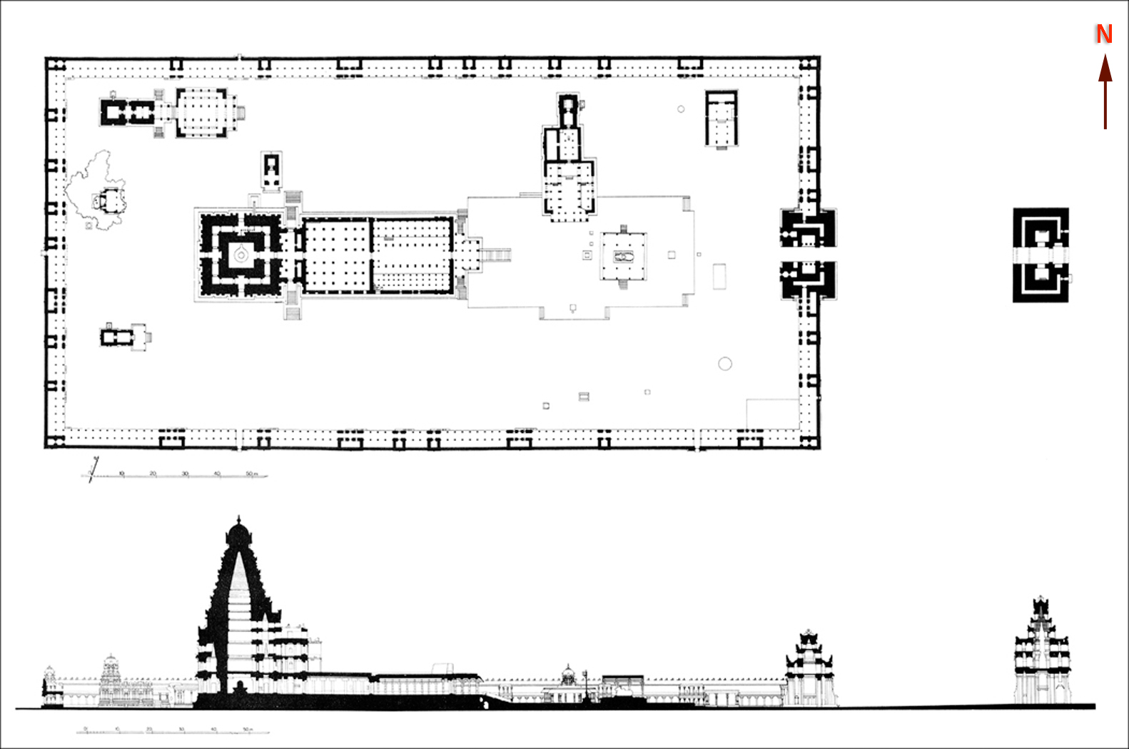
Plan and longitudinal section.